どうよ?男前リフォーム 大型バイク駐輪スペースもどうよ?

- 物件お問い合わせ番号
- 6016
| 所在地 | 福岡県福岡市早良区有田1丁目 27 |
|---|---|
| 賃料 | 5.6万円 |
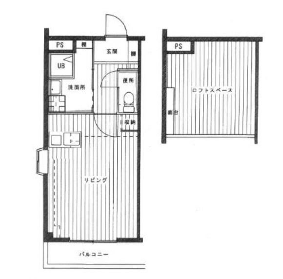
| 間取り | ワンルーム |
| 面積 | 26 ㎡ |
| 最寄り駅 | 福岡市営地下鉄七隈線 次郎丸 福岡市営地下鉄空港線 室見 |
颯爽と風を切って走るバイク
そう俺はライダー
憧れの大型バイク
いつも心はダビッドソン(イミフ)
いいと思うけど、大型バイク可の物件探してから購入OK?
なんでも大がつくと条件厳しくなってしまうのよ
大型車・大型バイク・大型犬 どこ置く問題がつねに賃貸には付き物・・
そんなおり見つけたこのお部屋
大型バイク・・可だと・・?
しかもなんかリフォーム済みで室内かっこよくない?
こいつは皆様に報告案件!
最寄り駅からは22分とちょっとあるけど
ライダーなあなたなら無問題なはず!
3月中旬に入居可能だから4月の新生活にも間に合いますよ!
どうよ?
- お電話でのお問い合わせ先
- 092-282-6565 092-282-6565
- お問い合わせの際には物件番号「6016」でお伝え下さい
| 敷金 | 無 |
|---|---|
| 礼金 | 有 2ヵ月 |
| 共益費 その他 |
共益費:5000円 町費:月額 350円 口座引落手数料:月額 550円 |
| 保証金 | 無 |
| 建築構造 | 鉄骨造 |
| 取引様態 | 媒介 |
| 所在階/建物階数 | 2階/地上3階 |
| 情報公開日 | 2026年02月13日 |
| 設備 | エアコン、シーリングファン、ロフト、照明器具付き、出窓、間接照明、全室照明付、ダウンライト、内廊下、敷地内ゴミ置き場、システムキッチン、給湯、宅配ボックス、シャワー、シャワールーム、トイレ、温水洗浄便座、バス・トイレ別、洗面所、洗面台、独立洗面脱衣所、洗濯機置場有、室内洗濯機置場、インターネット対応、インターネット使い放題、ディンプルキー、ダブルロックキー、TVモニタ付きインターホン、火災報知機、収納スペース、玄関収納、シューズボックス、フローリング、全居室フローリング、プロパンガス、駐輪場、バイク駐輪場(大型可) |
| 備考 | ※バイク(50cc)2,200円 中型・大型バイク3,300円 ※事務所使用可 |


